 |
« вернуться к списку продукции
6.1 Двигатели гусеничного хода типа КР251Б, КР411Б
Технические данные двигателей приведены в табл. 6.1.1.
Размеры и масса двигателей - см. рис. 6.1.1. - 6.1.3.
Отличительные особенности двигателей типа:
КР251Б2 - возможность реализации 4-х кратного пускового момента; допускается до 20 - 30 пусков в минуту; поворотная траверса щеткодержателей позволяет обслуживать щеточно-коллекторный узел только через один верхний люк; съемная поворотная клеммная коробка, подвод охлаждающего воздуха с правой или левой стороны обеспечивается применением одного конструктивного исполнения двигателей для левого и правого борта бурового станка.
КР251БП, КР251БП2 - могут устанавливаться взамен асинхронных двигателей типа МТКН412-8 без изменения механической части бурового станка; надежность работы в десятки раз выше, чем у асинхронных двигателей; клеммная коробка сверху имеет отверстия для ввода питающих проводов с 2-х сторон, а также одна универсальная крышка коллекторного люка обеспечивают применение единой конструкции двигателя для правого и левого борта бурового станка. Подшипниковые узлы повышенной работоспособности. Самая простая и надежная система охлаждения двигателей. Полное исключение чугуна из конструкции двигателя.
КР411Б - могут устанавливаться взамен асинхронных двигателей типа МТКF411-6 с полной взаимозаменяемостью по установочно-присоединительным размерам; клеммная коробка сверху, сальники на две стороны; одна универсальная крышка коллекторного люка, только два пальца щеткодержателей сверху для удобного доступа к щеткам; внизу станины пробка для слива конденсата (влаги).
| Таблица 6.1.1 ТЕХНИЧЕСКИЕ ДАННЫЕ ДВИГАТЕЛЕЙ ХОДА |
| Наименование параметров |
КР251Б2 |
КР251БП |
КР251БП2 |
КР411Б |
| Режим работы номинальный |
60 мин |
ПВ=100% |
60 мин |
60 мин |
ПВ=40% |
| Возбуждение |
независимое |
независимое |
независимое |
| Мощность номинальная, кВт |
60 |
50 |
35 |
30 |
25 |
| Напряжение номинальное, В |
440 |
220 |
440 |
440 |
| Ток якоря номинальный, А |
150 |
126 |
180 |
88 |
75 |
63 |
| Частота вращения, об/мин, -номинальная -максимальная |
1380 |
1400 |
850 |
1150 |
1180 |
| 1700 |
1700 |
2000 |
1800 |
1800 |
| Напряжение возбуждения, В |
95 |
110 |
110 |
| Ток обмотки возбуждения, А |
11 |
9,15 |
9,5 |
8,1 |
7,7 |
| Способ охлаждения |
независимая вентиляция |
естественное охлаждение |

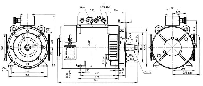
Рис. 6.1.1 Размеры и масса двигателя КР251Б2
1. Форма исполнения IM2403 ГОСТ 2479-79.
2. Степень защиты по ГОСТ 17494-87, не менее: для двигателя в целом - IP23;
для коробки выводов - IP54.
3. Коробка выводов съемная, с возможностью поворота на 180°.
4. Масса двигателя - 680 к г.

Рис. 6.1.2. Размеры и масса двигателей КР251БП, КР251БП2
1. Степень защиты IP54 по ГОСТ 17494-87.
2. Фора исполнения по ГОСТ 2479-79: КР251БП - IM2009;
КР251БП2 - IM2003.
3. Присоединительные размеры фланца и
конца вала со стороны привода одинаковые с двигателем МТКН412-8.
4. Масса двигателя: КР251БП - 490 кг; КР251БП2 - 486 к г.

Рис. 6.1.3 Размеры и масса двигателя КР411Б.
1. Форма исполнения IM2404 ГОСТ 2479-79.
2. Степень защиты IP54 по ГОСТ 17494-87.
3. Крышку коллекторного люка можно устанавливать замком слева или справа.
4. Установочно-присоединительные размеры фланца, концов вала и отверстий в лапах одинаковы с двигателем МТКF411-6.
5. Масса двигателя - 390 к г.
|
|
|